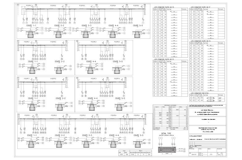
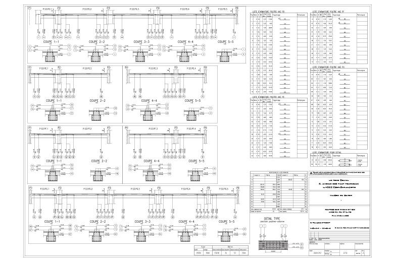
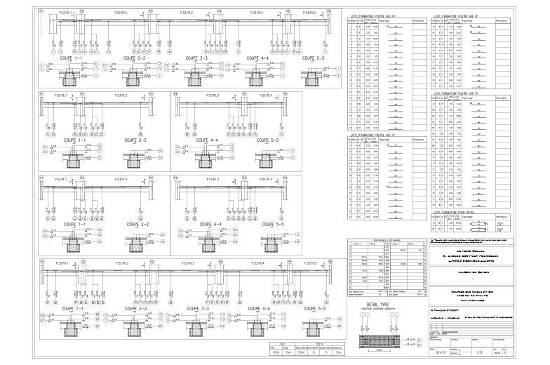
Construction d'un bâtiment universitaire
Dans le cadre de la construction de la Maison du savoir à Esch-Belval, études d'exécution des fondations profondes, de mise en conformité des confortements, de préfabrication des parkings en sous-sol ainsi que des dalles mixtes en toiture.
Architecte(s) : www.baumschlager-eberle.com - www.cba.lu - www.ingenieursbureaujanvanaelst.be
Lieu : Belval