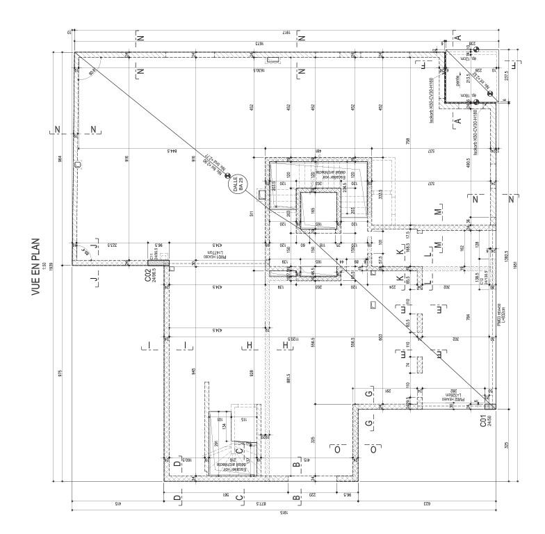
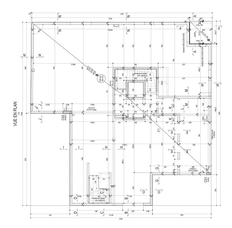
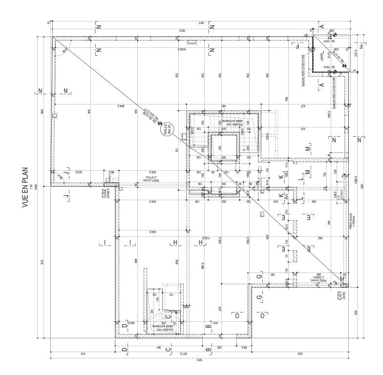
Construction d'une résidence de 6 appartements et une surface commerciale
Construction d'un immeuble résidentiel de 6 unités de logement et d'une surface commerciale rue d'Arlon à Steinfort. L'immeuble comprend un sous-sol de parking, un rez de chaussée commercial et trois niveaux de logements.
Architecte(s) : (Frank Thoma) http://www.archtho.eu/ (Marbehant Francis)
Lieu : Steinfort