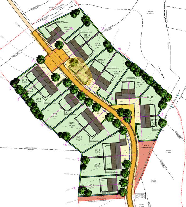
Permis d'urbanisation pour la création de 16 lots à Chenogne pour le compte de l'administration communale de Vaux-sur-Sûre. Les terrains seront vendus prioritairement aux jeunes ménages de la commune.
Lieu : Chenogne
Voir toutes nos références
BACK