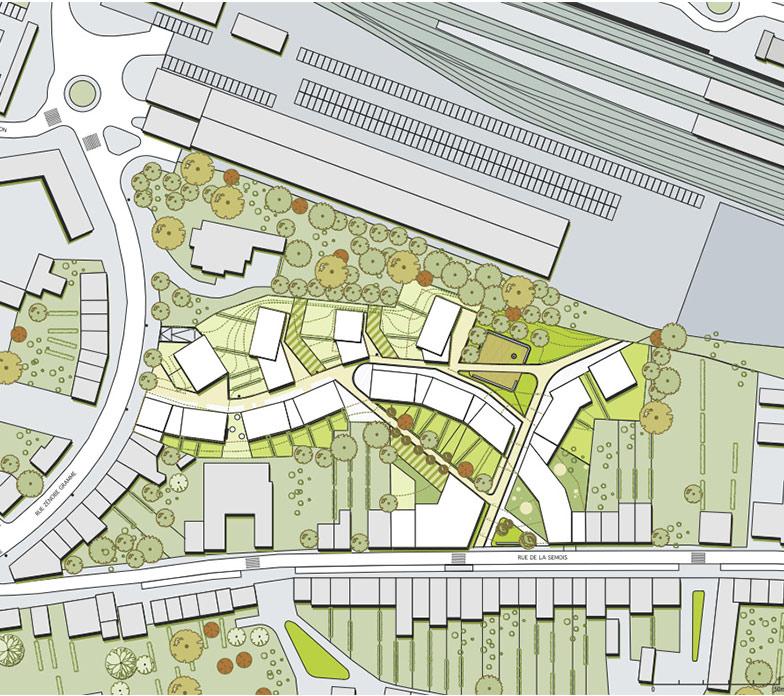
Site Genin
Le projet que nous avons mené en association avec Pierre Blondel Architectes et MS-A (urbanistes) fut lauréat du concours "appel à projet - construction d'un écoquartier à Arlon" lancé par Espace Didier SA (privé 51% et public 49%).
Lieu : Arlon